合肥[切换]
  • 装修热线:62722263
入驻巧装家

高品质互联网家装平台

老房研究院

老房装修文化艺术节中国老房装修标准指南

已为4057位业主提供老房装修服务

免费预约 开工即省30%
  • 您的称呼
  • 手机号码
  • 所在小区
预约热线:15656038267
为了你的利益及我们的口碑,你的隐私将被严格保密。
x 点击进入合肥站>>
选择其他城市:

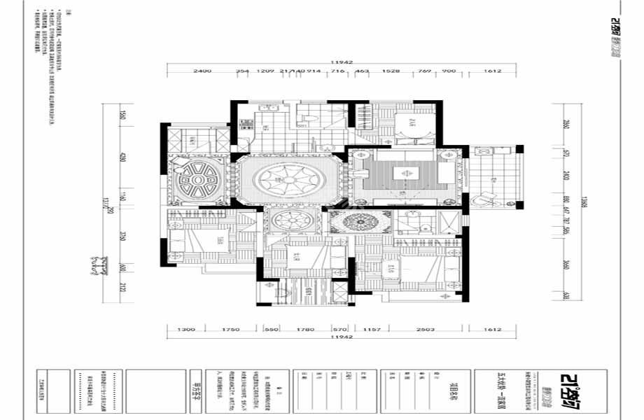
枫丹园145平方豪华欧式装修

小区:
户型:
复式LOFT
面积:
145.0平米
风格:
欧式
预算:
21.00万元
设计理念:
 本案设计说明:      本案突出文化主题,希望透过设计师的设计来凸显欧式的纯然风情及深厚的文化底蕴,体现出文化元素在家装设计中的实用与精致。      设计中,本案力求营造出一种使空间尽情挥洒源远流长的神韵,在给予空间生命力的同时也饱含文化情趣。      选材方面,除了欧式惯用的白色材质外,还用了玻璃、镜子等现代材料,大大提升了原质感的对比效果,在表现尊贵的同时还增添了几分现代感。与此同时,本案配搭了暖色的灯光,打破了传统布局沉闷的格调,使得空间的层次感、穿透性大大增强。      后期软装方面,选用的配搭灯具、家具等也很考究,既有西式元素,又具有强烈的时代感元素。例如天花水晶灯的闪烁效果,配搭上欧式家具、水晶灯、车边镜、挂画、饰品等完美组合,形成极具品位的装饰效果,将奢华的欧式风情演绎得淋漓尽致。      整套方案完美的融合了空间与人文的和谐共融,凸显出居室主人的精神文化情趣和审美高度
分享到:
赵奎

赵奎编号:UZ_2770

级别:

他承诺:
  • 所接的工地均经过国家级的标杠工程施工,平台监理全程严苛监工,15项验收标准,不合格砸掉重做
  • 所接的工地均经过国家级的标杠工程施工,平台监理全程严苛监工,15项验收标准,不合格砸掉重做
  • 从环保设计,环保材料,环保施工,环保检测四个方面要求,承诺环保不达标全额退款
  • 业主提交投诉,30分钟内受理、24小时内上门确认、48小时内协调解决

安徽合肥

从业12年 / 安徽合肥人 / 浙江传媒学院

  • 本月预约:0个
  • 成交记录 :3条
  • 作品数:22个
效果图
-枫丹园145平方豪华欧式装修
-枫丹园145平方豪华欧式装修
-枫丹园145平方豪华欧式装修
-枫丹园145平方豪华欧式装修
-枫丹园145平方豪华欧式装修
-枫丹园145平方豪华欧式装修
-枫丹园145平方豪华欧式装修
-枫丹园145平方豪华欧式装修
-枫丹园145平方豪华欧式装修

我家按此装修 需要多少钱呢

设计案例点评

加载更多