合肥[切换]
  • 装修热线:62722263
入驻巧装家

高品质互联网家装平台

老房研究院

老房装修文化艺术节中国老房装修标准指南

已为4057位业主提供老房装修服务

免费预约 开工即省30%
  • 您的称呼
  • 手机号码
  • 所在小区
预约热线:15656038267
为了你的利益及我们的口碑,你的隐私将被严格保密。
x 点击进入合肥站>>
选择其他城市:

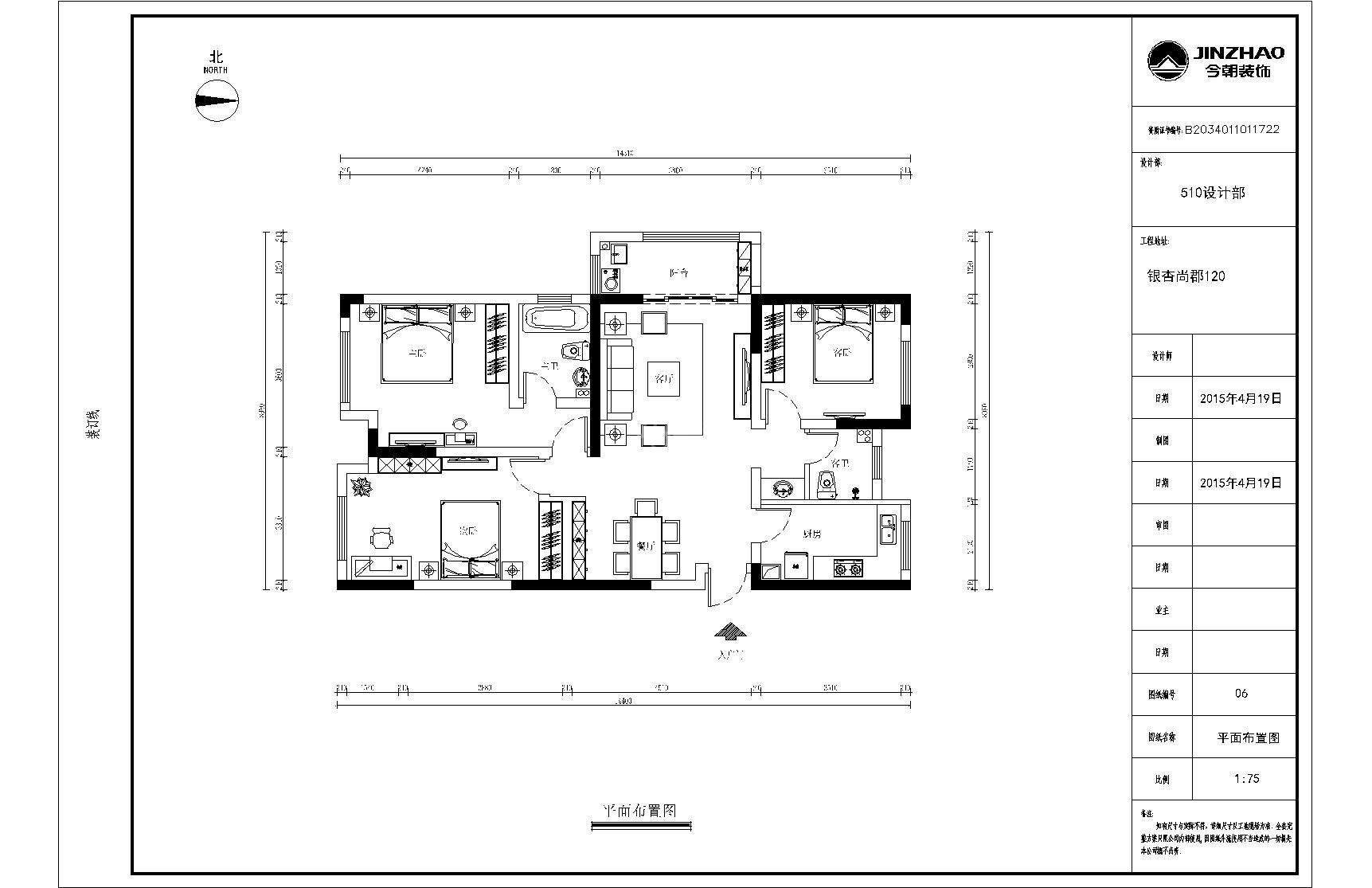
银杏尚郡120现代简约

小区:
户型:
普通
面积:
120.0平米
风格:
现代简约
预算:
4.50万元
设计理念:
本案位于银杏尚郡小区,其设计风格为现代简约,简洁而不简单是现代简约个性的基本特色。业主本人想让自己的家温馨而浪漫,所以我在设计中运用了大量暖色调,以及通过后期的软装,如木质沙发及窗帘来营造其温馨而又浪漫氛围。
分享到:

编号:UZ_

级别:

他承诺:
  • 所接的工地均经过国家级的标杠工程施工,平台监理全程严苛监工,15项验收标准,不合格砸掉重做
  • 所接的工地均经过国家级的标杠工程施工,平台监理全程严苛监工,15项验收标准,不合格砸掉重做
  • 从环保设计,环保材料,环保施工,环保检测四个方面要求,承诺环保不达标全额退款
  • 业主提交投诉,30分钟内受理、24小时内上门确认、48小时内协调解决

从业年 //

  • 本月预约:个
  • 成交记录 :条
  • 作品数:19个
效果图 施工图
-银杏尚郡120现代简约
-银杏尚郡120现代简约
-银杏尚郡120现代简约
银杏尚郡120现代简约

银杏尚郡120现代简约

我家按此装修 需要多少钱呢

设计案例点评

加载更多