合肥[切换]
  • 装修热线:62722263
入驻巧装家

高品质互联网家装平台

老房研究院

老房装修文化艺术节中国老房装修标准指南

已为4057位业主提供老房装修服务

免费预约 开工即省30%
  • 您的称呼
  • 手机号码
  • 所在小区
预约热线:15656038267
为了你的利益及我们的口碑,你的隐私将被严格保密。
x 点击进入合肥站>>
选择其他城市:

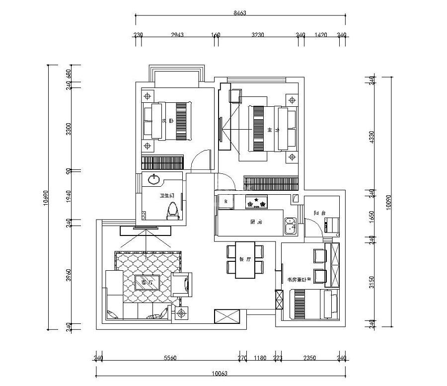
中天左岸86㎡现代简约

小区:
户型:
复式LOFT
面积:
86.0平米
风格:
现代简约
预算:
6.00万元
设计理念:
经过与屋主的多次详细沟通后,进门左手边打掉了原有的墙体将其做成鞋柜,这样方便了日常出门回家的便捷性。餐厅位置将厨房门改制左侧面让餐厅区域更加完整和谐。在餐厅与客厅之间设立了储物柜大大加强了居室的储物功能。其它的改动并不需要很大。在设计中屋主比较喜欢现代简约风格,效果图中显得非常简洁轻松,在忙碌的生活中咱们追求的不就是想回到家中得到更好的放松。
分享到:

编号:UZ_

级别:

他承诺:
  • 所接的工地均经过国家级的标杠工程施工,平台监理全程严苛监工,15项验收标准,不合格砸掉重做
  • 所接的工地均经过国家级的标杠工程施工,平台监理全程严苛监工,15项验收标准,不合格砸掉重做
  • 从环保设计,环保材料,环保施工,环保检测四个方面要求,承诺环保不达标全额退款
  • 业主提交投诉,30分钟内受理、24小时内上门确认、48小时内协调解决

从业年 //

  • 本月预约:个
  • 成交记录 :条
  • 作品数:26个
效果图 施工图
-中天左岸86㎡现代简约
-中天左岸86㎡现代简约
-中天左岸86㎡现代简约
-中天左岸86㎡现代简约
中天左岸86㎡现代简约

我家按此装修 需要多少钱呢

设计案例点评

加载更多