合肥[切换]
  • 装修热线:62722263
入驻巧装家

高品质互联网家装平台

老房研究院

老房装修文化艺术节中国老房装修标准指南

已为4057位业主提供老房装修服务

免费预约 开工即省30%
  • 您的称呼
  • 手机号码
  • 所在小区
预约热线:15656038267
为了你的利益及我们的口碑,你的隐私将被严格保密。
x 点击进入合肥站>>
选择其他城市:

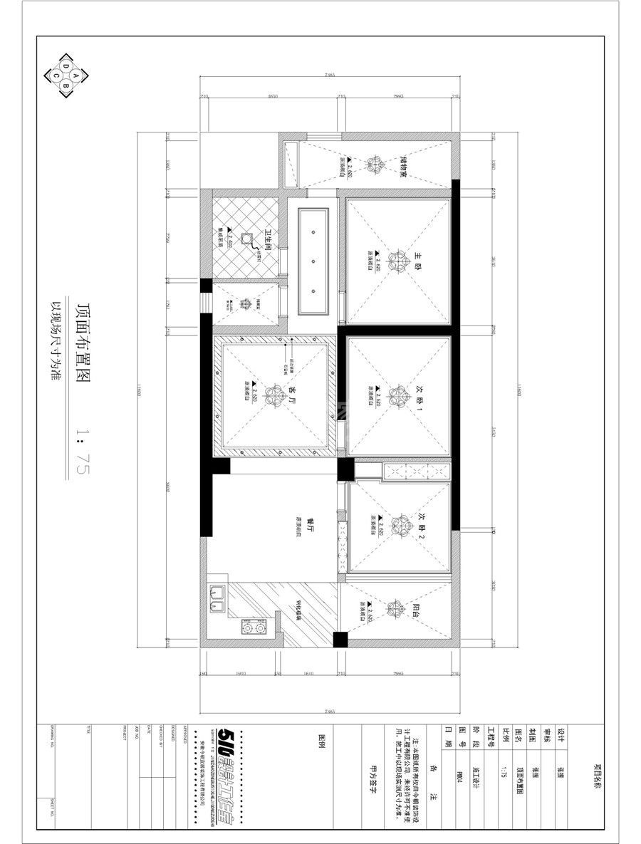
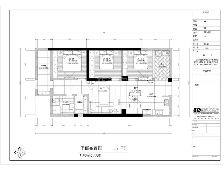
安医附院 110平 混搭风格

小区:
户型:
普通
面积:
110.0平米
风格:
北欧
预算:
7.00万元
设计理念:
混搭风格不仅注重居室的实用性,而且还体现出了现代社会生活的精致与个性,符合现代生活品位。在总体布局上方面尽量满足业主生活的需求,主要装修材料以樱桃木,壁纸,烤漆玻璃为主,以樱桃木的优美含蓄,壁纸的朴素大方来装饰墙面的景点。更体现现代简约的之感。创造一个温馨,健康的家庭环境。
分享到:
刘宇婷

刘宇婷编号:UZ_2711

级别:

他承诺:
  • 所接的工地均经过国家级的标杠工程施工,平台监理全程严苛监工,15项验收标准,不合格砸掉重做
  • 所接的工地均经过国家级的标杠工程施工,平台监理全程严苛监工,15项验收标准,不合格砸掉重做
  • 从环保设计,环保材料,环保施工,环保检测四个方面要求,承诺环保不达标全额退款
  • 业主提交投诉,30分钟内受理、24小时内上门确认、48小时内协调解决

安徽合肥

从业6年 / 安徽合肥人 / 皖西学院

  • 本月预约:0个
  • 成交记录 :2条
  • 作品数:33个
效果图 施工图
-安医附院 110平 混搭风格
-安医附院 110平 混搭风格
-安医附院 110平 混搭风格
安医附院 110平 混搭风格

安医附院 110平 混搭风格

我家按此装修 需要多少钱呢

设计案例点评

加载更多